
- Regular price
- $0.00
- Sale price
- $0.00
- Regular price
-
- Unit price
- per
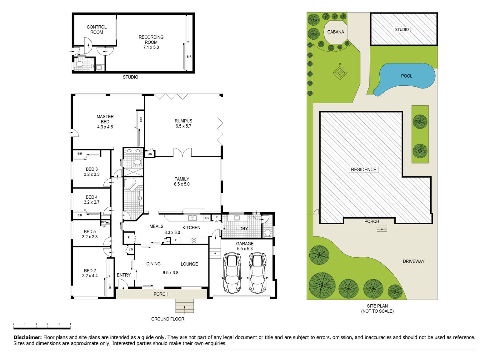
Are you interested in buying a home in Castle Hill with its own standalone semi-pro recording studio?
Check out this link and watch the video for more details!
Link to Ray White website containing the full listing:
https://www.raywhite.com/nsw/castle-hill/3374766
71 Square Metre standalone Studio
Rendered solid Besser block & slab construction with excellent sound insulation
Three phase mains power
Custom Mackie Digital 8 Bus Mixer Console & Master Control Panel
Lines from Studio to Control Room
· 28 Microphone Lines
· 24 Line level Lines
· 12 Headphone Lines
· 4 MIDI Lines
Comprehensive Audio & Video Patching system
Custom acoustic treatment Ventilation system
Sealed dual windows between control room & studio
Dual solid door noise locks & Dual hung ceilings
3 x Dual studio windows to the outside
Electronic Access System using PinPad and Contactless FOB